【秘訣】格好良い外観の設計『低重心デザインを叶える秘訣。』-屋根高さ-下屋-庇-ルーバー..etc-
こんにちは^ ^
エスネルは『高性能』や『居心地の良さ』を重視した設計を行っています。
そしてそれらを叶えつつ格好良い外観を造りたいと考えています。
秘訣は『低重心デザイン』。
その秘訣たちを紹介します。

エスネルデザインの設計思想は
性能-効果 > (表層的な)デザイン。
「(表層的な)デザインのために性能や効果を犠牲にする」ということはしません。
『意味のある設計=時が経っても劣化しない=格好良い設計』と考えています。
※「デザイン」という言葉は大きく2種類の使われ方がある。
「表層的なデザイン(見た目のデザイン)」と
「本質的なデザイン(見た目だけでなく性能や効果など全てを包括的に検討して導かれたもの)」
(designの日本語訳は「設計」)
【message】『素直な設計を。』-理に適った自然体の設計- - 住宅設計エスネルデザイン
意味のある設計(性能-効果)を重視しつつ
格好良い外観を造りたいという思いはあります。
また『意味のある設計を追求した形は自ずと格好良くなる』とも感じています。

エスネルは『高基礎-総2階-凹凸のない四角い平面』をベースに設計を行っています。
(それらのメリットは下の記事をご参照)
ただし「高基礎-総2階-凹凸のない四角い平面」の家は外観デザインが難しい。
理由は
・高基礎→背が高くなる(高重心、面長)
・総2階-四角い平面→単調な造形(彫りが浅い)
になりやすいため。
それらの印象を緩和するため
〇重心(高さ)を抑える。
〇凹凸を造る。
ことを意識して設計を行っています。
【秘訣】『高基礎による床下空間のメリット。』床下収納、メンテナンス性、耐久性、アジト。-小さな家の心臓部- - 住宅設計エスネルデザイン
【秘訣】総二階プランのススメ『構造・熱損失・コスト』大きなメリットたち。 - 住宅設計エスネルデザイン
プランの凹凸でコストが増える!初3Dパース(スケッチアップ) - 住宅設計エスネルデザイン
『重心(高さ)を抑える』『凹凸を造る』秘訣たちを紹介します^ ^
〈秘訣1〉屋根の位置を下げる。〈秘訣2〉屋根を出す。

「屋根の位置を下げる+屋根を出す」ことで低重心な外観を造り出す。
人は「屋根の先の位置(高さ)」を「その建物の高さ」と感じる。
「屋根の位置を下げる+屋根を出す」主目的は
〇夏の日射熱侵入を抑える(快適性-冷房経済性)。
〇外壁が濡れる量を抑える(耐久性-防水性)。
そこから来る形状を外観デザインに活用している。

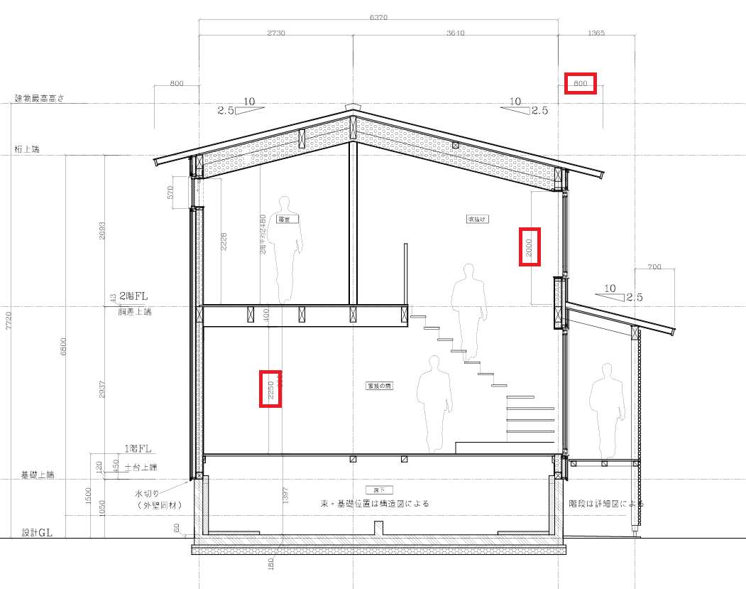
『各階の天井高さを必要十分量に抑える』ことが「屋根の位置を下げる」ことにつながる。
(上図:1階天井高=2.25m。2階最低天井高=2.0m)
「各階の天井高さを必要十分量に抑える」主目的は
〇高さのメリハリのある空間を造る。
(吹抜け-勾配天井など高い部分と低い部分のメリハリ。天井高を抑えた落ち着ける居心地を造る。「梁表し」として天井高は得つつ階高を抑える場合もある)
〇壁の量(高さ)を抑えることで「建物重量減→構造負担減」「コスト減」を叶える。
あくまで主目的は「性能-効果」。
それを外観デザインにつなげている。
上記建物(網川原のエスネル)をある設計士の方が見学された際に
「高基礎の家とは思えない。むしろ一般的な家よりも低いように感じる。どうやっているのですか??」
と驚いて(お褒め)頂いたことが記憶に残っている。

高基礎(h=1.4m)の家だが隣家の高さと同程度。
「屋根の位置を下げる+屋根を出す」ことの効果が見て取れる。


前面(南)に向かって屋根を下げる=『招き屋根』はエスネルのアイコンとなっている。
〈招き屋根の利点〉
〇前面の屋根高さを抑える。
〇高さのメリハリを造る。
〇広いLDKを造る(柱は屋根頂点の下)。
〇ロフト空間を確保しやすい。
〇太陽光パネル積載可能面積確保。

〈秘訣3〉下屋(ポーチ)を造る。〈秘訣4〉ルーバーを下げる。

前述の通り「人は屋根の先の位置(高さ)をその建物の高さと感じる」。
=下屋があると下屋の屋根先の(低い)印象が建物全体の高さに影響を与える。
(「急に壁が2階まで立ち上がる」よりも下屋があることでなだらかさ=安定感を感じる。ex.富士山)
また『ルーバーを地面近くまで下げる』ことも安定感=低重心の印象に寄与している。

下屋+ルーバーが『水平に連続』するとより安定感=低重心の印象は増す。
カーデザインでいう「ワイド&ロー」な外観。

下屋は『重心(高さ)を抑える』だけでなく建物に『凹凸を造り奥行を生む』ことにも寄与する。
ポイントは
〇家本体の外形=構造-断熱気密区画はなるべく凹凸なく四角く造る。
(〇構造合理性。〇断熱気密施工性。〇高コストパフォーマンス)
〇凹凸は玄関ポーチ=断熱気密区画外で造る。
「高基礎=ポーチ階段が必要→屋根+デッキにし特別な半屋外空間を造る」という主目的を外観デザインにつなげている。
【秘訣】『心地良い半屋外空間を造る。』ウッドデッキポーチ、ルーバーウォール。-木に囲まれた空間、多彩な居場所- - 住宅設計エスネルデザイン
【秘訣】『心地良い半屋外空間 case.長倉。』ウッドデッキ、ルーバー、照明、過ごし方。-設計のポイント- - 住宅設計エスネルデザイン
【秘訣】屋根付き玄関ポーチの心地良さ-格好良さ『温故知新-縁側のリデザイン。』-特別な半屋外空間- - 住宅設計エスネルデザイン





下屋+ルーバーによる低重心化。
そして水平に連続する「庇」も安定感=低重心感に寄与する。
(主目的は夏の日射熱侵入抑制)

下屋-庇の有/無の比較。
印象の差が見て取れる。

屋根の位置(高さ)、屋根の出の有/無の比較。
低重心な印象の差だけでなく「屋根による影=彫りの深さ」の印象の差も感じられる。
(外壁に当たる雨量=耐久性-防水性の違いも)

同じ間取りでも屋根-下屋-庇の有無により印象は大きく異なる。

また外観デザインで重要なのは『窓』。
サイズ、位置、種類、、
性能と効果を重視しつつ外観が整うよう意識して窓設計を行っている。
【秘訣】エスネルの窓紹介『心地良い窓を叶える。』カーテンを開けられる窓設計の秘訣。-高基礎-植栽..etc- - 住宅設計エスネルデザイン
【秘訣】窓設計の考え方『快適で心地良い暮らしを作る。』眺望-抜け-採光-日射遮蔽取得。-窓記事まとめ- - 住宅設計エスネルデザイン

『屋根を下げる』『屋根を出す』『下屋+ルーバー』『庇』を取り入れた自邸-森のエスネル。
杉板『横張り』もワイド&ローな印象に一役買っている。
また植栽(大きさ)との対比で家がより低く見える効果も得ている。
(そのほか『薄い屋根』等も格好良い外観を造る秘訣。長くなるのでまたいずれ)

................
「設計」は簡単ではない。
性能-効果を求められつつ、見た目の良さも期待される。
(人の内面と外見のよう)
コストコントロールも考慮しながら。
しかし、可能な限りどれも追い求めたい。
「性能が良ければ見た目はどういうものでも良い」とはならない。
その『優先順位のバランス』が設計者の個性なのだろう。
自分が信じるバランスをこれからも追求していきたい。
-「超高断熱の小さな木の家」escnel design-

【関連記事】................
往年の名車や今も残る昔の家々からデザインの秘訣を学んでいます^ ^
【design】『トヨタ2000GT.フェアレディZ(S30)。』名車から学ぶデザイン。-日本の美- - 住宅設計エスネルデザイン
【design】トヨタ2000GT『曲線デザインの美しさ。』トヨタ博物館-モノづくりの魂。-造作手摺への想い- - 住宅設計エスネルデザイン
【探訪】中山道-建築の旅『妻籠、馬籠、奈良井宿。』温故知新、理由あるデザイン。-趣味と仕事の越境- - 住宅設計エスネルデザイン
【design】デザインへの想い。『水平と垂直、日本の美。』杉板張り×ルーバー。 - 住宅設計エスネルデザイン

